アプローズ越谷 305
🔧【2023年10月リフォーム済み!美しく生まれ変わった室内✨】
賃料
6.5万円
間取り
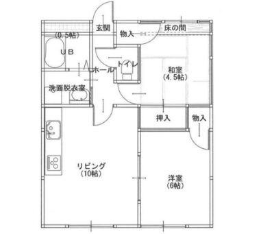
2LDK
ナイトハウジングは、夜職や個人事業主の方でも賃貸物件の審査を突破し、理想の物件を借りられるようサポートする不動産サービスです。
物件のお問合せをする
■水回り:キッチン・トイレ・洗面所・給湯器を一新。
■内装:床・壁・天井・建具まで全面リフォーム済みで、まるで新築のような快適空間🏠
明るく風通しの良い角部屋で、毎日を気持ちよく過ごせます♪
🏪ローソンプラスまで徒歩約6分(約420m)で、ちょっとした買い物にも便利🛒
物件概要
物件名
アプローズ越谷 305
所在地
賃料
6.5万円
管理費 / 共益費
4,000円
敷金
6.5万円
礼金
0円
契約期間
2年
交通
築年月
1990年10月
間取り
2LDK
所在階 / 階建
3階/3階建て
広さ
51.03㎡
建物構造
RC
設備仕様
キッチン
ガスコンロ可
バス・トイレ
B・T別 シャワー
セキュリティ
モニタ付インターホン 火災警報器(報知機)
ペット
設備
洗面所独立 収納スペース シューズボックス 室内洗濯機置場 給湯 都市ガス
共用設備
備考
周辺地図
住所が入力されておりません。
他にも多数の物件を取り揃えております 。お気軽にお問い合わせください。
条件の近い物件
末広ウッドヴィレッジ 203
千葉県千葉市中央区末広2丁目3-6 末広ウッドヴィレッジ 203
JR外房線「本千葉駅」徒歩11分
千葉都市モノレール1号線「県庁前駅」徒歩12分
京成千原線「千葉寺駅」徒歩14分
Totsu Residence Shiba 1001
東京都港区芝3丁目39ー7 Totsu Residence Shiba 1001
都営三田線「三田駅」徒歩4分
都営浅草線「三田駅」徒歩4分
JR山手線「田町駅」徒歩7分












