フィール天神町3号館(フィールテンジンチョウ) 0406
フィール天神町3号館 0406|府中駅
賃料
12.8万円
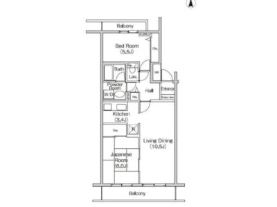
間取り
2LDK
東京都府中市天神町1丁目 12-12
京王線「府中駅」徒歩18分
ナイトハウジングは、夜職や個人事業主の方でも賃貸物件の審査を突破し、理想の物件を借りられるようサポートする不動産サービスです。
物件のお問合せをする
🏠59㎡のゆったり2LDK!全室フローリングで掃除も楽ちん♪
🍳3口コンロ&グリル付きシステムキッチンでお料理も充実◎
🛁追い焚き・独立洗面台・モニターホンで快適&安心!
🍳3口コンロ&グリル付きシステムキッチンでお料理も充実◎
🛁追い焚き・独立洗面台・モニターホンで快適&安心!
物件概要
物件名
フィール天神町3号館(フィールテンジンチョウ) 0406
所在地
東京都府中市天神町1丁目 12-12
賃料
12.8万円
管理費 / 共益費
0円
敷金
12.8万円
礼金
0円
契約期間
-
交通
京王線「府中駅」徒歩18分
築年月
1998年2月
間取り
2LDK
所在階 / 階建
4階建/4階部分
広さ
59.04㎡
建物構造
RC
設備仕様
キッチン
ガスコンロ付 3口以上コンロ システムキッチン グリル
バス・トイレ
B・T別 追焚機能 トイレ 洗面台 洗面所独立
セキュリティ
ディンプルキー モニタ付インターホン
ペット
設備
室内洗濯機置場 給湯 都市ガス フローリング 全居室フローリング エアコン CATV インターネット対応 光ファイバー
共用設備
バルコニー
備考
楽器不可
保証人要
保証人要
周辺地図
他にも多数の物件を取り揃えております 。お気軽にお問い合わせください。
条件の近い物件
スワンズシティ谷町モデルノ 1101
大阪府大阪市中央区和泉町1丁目9 スワンズシティ谷町モデルノ 1101
大阪メトロ中央線「谷町四丁目駅」徒歩6分
大阪メトロ谷町線「谷町四丁目駅」徒歩6分
大阪メトロ長堀鶴見緑地線「谷町六丁目駅」徒歩8分












